Головна >> Продаж виробничої та промислової нерухомості >> Ріелтор Карпенко Сергій >> Об'єкт №252583
Автосалон СТО Балтийский переулок (№ 252-583)
Ціна: 20 000 000 $

Адреса: Балтійський пров., 20, Київ, Оболонський, Куренівка, м. Тараса Шевченка
Характеристики
| Ціна: | 20 000 000 $ |
|---|---|
| № об'єкта: | 252-583 |
| Тип: | складські приміщення, виробничі приміщення |
| Площа: | 32000 м2 |
| Ділянка: | 600 сот |
| Додатково: | є під'їздні шляхи |
Опис
Объект расположен в одном из деловых районов г. Киева –по адресу пер. Балтийский, 20
-расстояние до центральной части города 5-6 км.
-расстояние до киевской окружной дороги 4 км.
-расположен рядом с центральными автомобильными развязками, ведущими во все районы города.
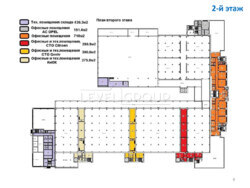
-общая площадь 32 000м2
Площадь складских помещений – 4 357,9м2.
Рампа для принятия и отгрузки товара –
2 500 м2.
Разгрузка – погрузка любого автотранспорта, а также мелкого и крупногабаритного товара
Площадь складских помещений – 7 062,9 м2.
Стеллажное хранение на паллетах и полупаллетах, в мелких и средних ячейках, и негабаритного товара




















