Окрема будівля (ОРБ) 1481м2 в історичному центрі на вул. Михайлівська вул., 12-Б (№ 2-312-154)
Ціна: 4 443 000 $

Адреса: Михайлівська вул., 12б, Київ, Шевченківський, м. Майдан Незалежності
Характеристики
| Ціна: | 4 443 000 $ |
|---|---|
| № об'єкта: | 2-312-154 |
| Тип: | окремо стояча будівля |
| Площа: | 1481 м2 |
| Поверх: | 4 / 4 |
| Додатково: | окремий вхід, парковка |
Опис
Будівля розташована в центрі Києва на Майдані Незалежності, вул Михайлівська, 12-Б.
Поруч знаходиться вся необхідна інфраструктура: кав'ярні, ресторани для бізнес ланчів, банківські установи та обмінні пункти для зручних фінансових операцій. Супермаркети, аптеки та інші магазини. Парк ім. Тараса Шевченка, Володимирський пішохідний міст. Місця культурних заходів, театрів та галерей для можливостей відпочинку.
Безпека: пожежна сигналізація; карткова система пропусків; охорона 24/7; укриття на цокольному поверсі з двома входами; система оповіщення під час повітряної тривоги. Локація: 2 хвилини від метро 'Майдан Незалежності'.
Доступна ціна стане ідеальним рішенням для комфортної праці та досягнення конкретних цілей!
Технічні характеристики:
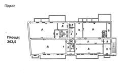
Підвал: 262,5 м2;
Перший поверх: 280,3 м2;
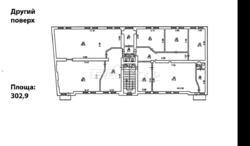
Другий поверх: 302,9 м2;
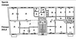
Третій поверх: 305,8 м2;
Четвертий поверх (мансарда та антресоль): 329,9 м2;
Загальна площа будівлі: 1481,4 м2.
приміщення вільного призначення









