офіс. Ул. Мельникова,12. Метро Лук'янівська 4 хвилини пішки (№ 2-310-149)
Ціна: 82 000 $

Адреса: Юрія Іллєнка вул. (Мельникова), 12, Київ, Шевченківський, Лук'янівка, м. Лук'янівська
Характеристики
| Ціна: | 82 000 $ |
|---|---|
| № об'єкта: | 2-310-149 |
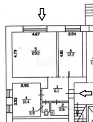
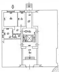
| Тип: | нежиле приміщення в житловому будинку |
| Площа: | 56 м2 |
| Кабінетів: | 3 |
| Поверх: | 1 / 5 |
Опис
Вулиця Іллєнка (Мельникова), 12. Планування роздільне. 3 кабінети, кухня, коридор та санвузол. Сталинка. Товсті цегляні стіни. Стелі – 3.2 м. Євроремонт. Ламінат, металопластикові вікна, броньовані двері. 2 кондиціонери, холодильник. Вбудована шафа-купе, офісні меблі. Система охоронної та пожежної сигналізації, домофон, міська телефонна лінія. Вбудований сейф. На вікнах решітки та захисні ролети. Нежитловий фонд у житловому будинку. Парадне прохідне (вхід у парадне - з фасаду та з двору). Вхід до офісу – з парадного, а також окремий вхід із двору. Вікна у двір. На в'їзді у двір – шлагбаум. Паркування на подвір'ї. Парадне у хорошому стані.Місце з великою прохідністю. Під будинком зупинка автобусів, тролейбусів, маршруток. Станція метро Лук'янівська – 4 хвилини пішки. Поруч торговий центр, парк, безліч кафе, ресторанів



















