Оренда офісу по вул. Ярославів Вал, 14 б (№ 14-100-906)
Ціна: 4 550 $ + комунальні

Адреса: Ярославів Вал вул., 14б, Київ, Шевченківський, Кудрявець
Характеристики
| Ціна: | 4 550 $ + комунальні |
|---|---|
| № об'єкта: | 14-100-906 |
| Тип: | окремо стояча будівля |
| Площа: | 175 м2 |
| Кабінетів: | 3 |
| Поверх: | 2 / 6 |
| Додатково: | окремий вхід, кондиціонер, парковка |
Опис
Оренда офісу в історичному центрі Києва
вул. Ярославів Вал, 14Б | м. Золоті Ворота – 200 м
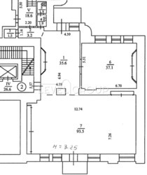
Пропонується в оренду просторий офіс площею 175 м², розташований на 2-му поверсі адміністративної будівлі.
Офіс займає окреме крило, що забезпечує комфорт і приватність для компанії.
Планування:
Велика загальна зала (open space) – 94 м²
Кабінет – 37 м²
Рецепція / хол – 37 м²
Санвузол – у приміщенні
Характеристики:
Тип офісу: відкритого типу (open space)
Клас офісу: B
Стан: з ремонтом
Мебльований
Опалення: власна котельня
Комфорт та безпека:
Відеоспостереження
Охорона території
Пожежна сигналізація
Ліфт
Кондиціонери
Балкон / лоджія
Автономний електрогенератор
Комунікації:
Центральне водопостачання
Центральна каналізація
Електрика
Асфальтований під’їзд
Інфраструктура (до 500 м):
Метро «Золоті Ворота»
Банки та банкомати
Бізнес-центри та офіси
Кафе, ресторани, бари
Супермаркети, ТРЦ
Парковка, стоянка, гаражі
Пошта, аптеки, навчальні заклади
Зручна транспортна розв’язка
Ідеально підходить для: IT-компанії, юридичної фірми, консалтингу, креативної студії, представництва компанії.















