Здається офіс Київ, Шевченківський, Івана Франка вул. (№ 14-100-114)
Ціна: 19 $ + комунальні

Характеристики
Ціна: | 19 $ + комунальні |
---|---|
№ об'єкта: | 14-100-114 |
Тип: | бізнес центр |
Площа: | 155 м2 |
Поверх: | 1 / 4 |
Додатково: | окремий вхід, кондиціонер, парковка |
Адреса: Київ, Шевченківський, Івана Франка вул.
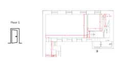
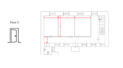
Пропонується в оренду сучасний офіс з окремим входом на першому поверсі, друга лінія. Двоповерховий офіс з відкритими зонами та кабінетною системою
Формат та планування:
• 1 поверх: просторий open‑space + кухня
• 2 поверх: кабінетна система
Стан:
• Свіжий косметичний ремонт
• Приміщення готове до роботи
Інженерія та комфорт:
• Завжди є електроенергія
• Встановлено резервний генератор
• Проведено всі необхідні комунікації
Парковка:
• Власне паркомісце біля будівлі
• Оренда паркомісця: 300 $ / місяць
Локація: друга лінія забудови — тиша й комфорт; поруч ст. метро Золоті Ворота та Університет, сквери, ресторани, кав’ярні.
Вартість оренди:
• 19$ / м² + 3$ / м² (експлуатаційні)
• Загальна: 3 565 USD
• Комунальні послуги — окремо.
• Резервне живлення