Продаж квартир
Ціна: 140 000 $
ID 213-319-669
Ціна: 107 000 $
ID 213-319-576
Ціна: 62 000 $
ID 213-319-575
Ціна: 123 000 $
ID 213-319-543
Ціна: 66 000 $
ID 213-319-362
Ціна: 89 000 $
ID 213-319-268
Ціна: 77 200 $
ID 213-319-267
Ціна: 103 500 $
ID 213-319-266
Ціна: 95 000 $
ID 213-319-178
Ціна: 420 000 $
ID 213-319-152
Ціна: 209 900 $
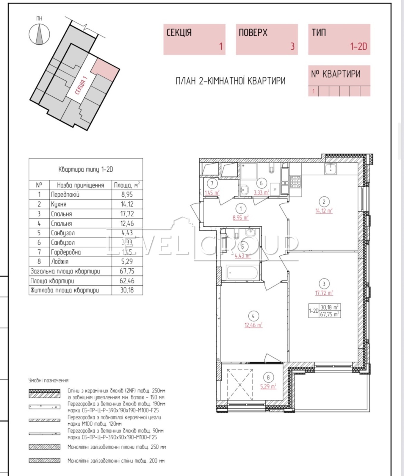
Продаж 2-кімнатної квартири в клубному будинку ЖК Тихорецький вул. Семена Палія 30/7 (№ 213-319-035)
ID 213-319-035
Ціна: 149 000 $
ID 213-319-030
Ціна: 5 278 080 грн.
ID 213-318-983
Ціна: 119 900 $
ID 213-318-954
Ціна: 4 607 000 грн.
ID 213-318-924










































































