1-к квартира з гардеробною в ЖК Варшавський 3, буд. 10.8, поверх 3 (№ 213-319-362)
Ціна: 66 000 $

10.8, Київ, Подільський, Виноградар
Характеристики
| Ціна: | 66 000 $ |
|---|---|
| № об'єкта: | 213-319-362 |
| Кімнат: | 1 розд |
| Поверх: | 3 / 23 ліфт |
| Площа: | 39.90 / 11.81 / 17.25 м2 |
| Санвузол: | 1 сумісний |
| Балкон: | відсутній |
| Додатково: | новобудова |
Опис
Продаж 1-кімнатної квартири в ЖК Варшавський 3 з гардеробною.
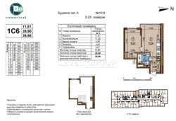
Будинок 10.8
Поверх 3/23
Планування 1С6
Площа - 39,9 м, зручне функціональне планування: окрема кімната, кухня-вітальня, гардеробна.
Стан - після забудовника, ідеально під власний ремонт.
Введення в експлуатацію - 3 квартал 2027 року.
Сучасний ЖК із розвиненою інфраструктурою та зручною транспортною розв’язкою.
Перепоступка за рахунок покупця.





