Продаж 2-кімнатної квартири в ЖК «Патріотика» | вул. Софії Русової, 7г. (№ 213-288-195)
Ціна: 86 000 $

Софії Русової вул., 7г, Київ, Дарницький, м. Позняки
Характеристики
| Ціна: | 86 000 $ |
|---|---|
| № об'єкта: | 213-288-195 |
| Кімнат: | 2 розд |
| Поверх: | 21 / 25 ліфт |
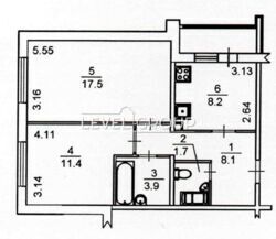
| Площа: | 54 / 37 / 8 м2 |
| Санвузол: | 2 роздільний |
| Балкон: | балкон |
| Додатково: | новобудова |
Опис
Продаж 2-кімнатної квартири в ЖК «Патріотика» | вул. Софії Русової, 7г Пропонується світла та функціональна 2-кімнатна квартира в сучасному житловому комплексі «Патріотика», у пішій доступності до метро Осокорки. Загальна площа — 53,8 м? Окремі кімнати — 17,5 м та 11,4 м Кухня — 8,2 м Балкон із виходом з кухні 21 поверх із 25 Право власності з 2019 року. У квартирі ніхто не проживав та не зареєстрований. Квартира з ремонтом від забудовника, додатково виконано якісний ремонт у санвузлах та на балконі. Встановлені лічильники на воду, електроенергію та тепло. У будинку встановлено інвертор — навіть під час відключення електроенергії працюють ліфти, є вода та опалення. Про будинок: Охайне парадне Консьєрж ОСББ Поруч багаторівневий паркінг з охороною На території ЖК розташовані супермаркети, магазини, кав’ярні, салони краси, Нова Пошта, банк та все необхідне для комфортного життя. У пішій доступності: метро Осокорки, Епіцентр, Скандінавська гімназія, дитячі садочки, мальовничі озера зі спортивними майданчиками та зонами відпочинку.


























