Продаж 3-кімнатної квартири ЖК Причал 8 (№ 213-285-996)
Ціна: 96 000 $

Гліба Бабіча вул. (Канальна), 8-Г, Київ, Дарницький, Позняки
Характеристики
| Ціна: | 96 000 $ |
|---|---|
| № об'єкта: | 213-285-996 |
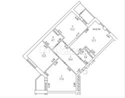
| Кімнат: | 3 розд |
| Поверх: | 20 / 24 ліфт |
| Площа: | 84,7 / 42,9 / 17,7 м2 |
| Санвузол: | 2 сумісний |
| Балкон: | балкон+лоджія |
| Додатково: | новобудова |
Опис
Продаж 3-кімнатної квартири ЖК Причал 8
вул. Гліба Бабіча, 8-Г
секція 9
поверх 20/24
Площа
*загальна 84,7 м2;
*житлова 42,9
*кухня 17,7 м2.
Квартира після будівельників: стіни - штукатурка, підлога - лазерна стяжка, стеля - без оздоблення.
Комплекс закритого типу, є власний вихід до озера, на якому проходять турніри з риболовлі, розташована барбекю зона.
Право власності оформлене, розглядаємо всі державні програми.
Запрошуємо на перегляд.













