3кімнатна квартира (90м2) в ЖК Галактика (№ 213-234-053)

Ціна: 144 000 $
Характеристики
| Ціна: | 144 000 $ |
|---|---|
| № об'єкта: | 213-234-053 |
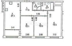
| Кімнат: | 3 розд |
| Поверх: | 21 / 24 ліфт |
| Площа: | 90 / 45 / 21 м2 |
| Санвузол: | 2 сумісний |
| Балкон: | лоджія |
| Додатково: | новобудова |
Адреса: Київ, Дніпровський, Лівобережний (Микільська Слобідка), Євгена Сверстюка вул. (Марини Раскової), 6в, м. Лівобережна
3 кім. кв. в ЖК Галактика, Сверстюка 6В.
Квартира знаходиться на 21/24 пов. монолітно-каркасного будинку.
Будинок розташований в середині житлового комплексу і вікна виходять у двір. Квартира 90 кв. м., житлова - 45 кв.м. і 21 кв.м. кухня, під ремонт, після будівельників: на полах стяжка, встановлені радіатори опалення, броньовані вхідні двері.
Кімнати роздільні, правильної форми, два сан. вузла.
Будинок підключений до генератора, облаштоване бомбосховище. Відеоспостереження, охорона, підземний паркінг.
На перших поверхах розміщені: магазини, салони, аптека, дитячі садки, ліцей. Облаштовані зони відпочинку: футбольні та баскетбольне поле, корт для великого тенісу, столи для настільного тенісу настільного, дитячі та спортивні майданчики.
Поруч Русанівський канал з облаштованою зоною для прогулянок.
До метро Лівобережна -10 хвилин пішої ходи.
Можливий продаж по державним програмах та Є-Оселі.















