Приозерний бульв., 5, Продаж квартири в ЖК “Озерний гай” (№ 213-230-168)
Ціна: 55 000 $

Приозерна, 5, Гатне, Фастівський, Київська
Характеристики
| Ціна: | 55 000 $ |
|---|---|
| № об'єкта: | 213-230-168 |
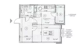
| Кімнат: | 1 розд |
| Поверх: | 2 / 10 ліфт |
| Площа: | 46 / 30 / 11 м2 |
| Санвузол: | 1 сумісний |
| Балкон: | балкон |
| Додатково: | новобудова |
Опис
Продається квартира з готовою дизайнерською візуалізацією та виконаним демонтажем внутрішніх перегородок — ідеальна база для створення комфортної 2-кімнатної квартири за готовим дизайн-проєктом.
ЖК “Озерний гай” — це сучасний комплекс із великою зеленою територією та власною інфраструктурою:
Озеро та прогулянкові зони всередині комплексу
Школа та спортивні майданчики
Футбольне поле
Найближчим часом відкривається мережевий супермаркет (Сільпо або Novus)
Дитячі майданчики, зони відпочинку, нові будинки та облаштований двір
Локація одна з найзручніших у передмісті:
10 хвилин до метро Теремки
10 хвилин до ТРЦ “Республіка”
Швидкий виїзд на Окружну
Поруч транспорт, магазини, садочки та школи


















