Продаж трикімнатна квартира з частковим ремонтом в ЖК SKY AVENUE (№ 213-225-410)

Ціна: 125 000 $
Характеристики
| Ціна: | 125 000 $ |
|---|---|
| № об'єкта: | 213-225-410 |
| Кімнат: | 3 розд |
| Поверх: | 11 / 16 ліфт |
| Площа: | 90 / 42 / 18 м м2 |
| Санвузол: | 2 роздільний |
| Балкон: | балкон |
| Додатково: | новобудова |
Адреса: Київ, Шевченківський, Святослава Хороброго вул. (Народного ополчення), 11-б, м. Вокзальна
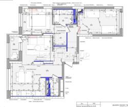
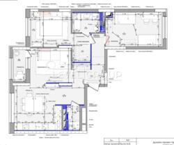
Пропонується повноцінна трикімнатна квартира зручного планування. Вікна виходять на майбутній ТЦ та з іншого боку у двір. Є готовий дизайн проєкт, як бонус для покупця. SKY AVENUE – житловий комплекс класу комфорт+, розташований в декількох хвилинах від Севастопольської площі по вулиці Святослава Хороброго, 11Б. В рамках проекту буде зведено шість житлових будинків із комерційними приміщеннями на перших поверхах. Наважуючись придбати квартиру в Соломянському районі за прийнятною вартістю, ви отримуєте крокову доступність до основних інфраструктурних вузлів. Біля ЖК вже функціонують школи, центри раннього розвитку малюків, салони краси, фітнес-центри, банки, супермаркети. Сам проєкт передбачає будівництво: -торгового центра на території комплексу; -дитячого садочка на 3 поверхи; -спорткомплексу з роликодромом та басейном. Будинки розташовані таким чином, аби створити затишні внутрішні двори з дитячими та спортивними майданчиками, зонами відпочинку. Головною фішкою комплексу є концепція «Двір без машин»





















