Двокімнатна квартира 71м2 в ЖК бізнес класу Nordica Residence (№ 213-223-569)

Ціна: 135 000 $
Характеристики
| Ціна: | 135 000 $ |
|---|---|
| № об'єкта: | 213-223-569 |
| Кімнат: | 2 см/рз |
| Поверх: | 11 / 26 ліфт |
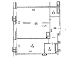
| Площа: | 71 / 40 / 20 м2 |
| Санвузол: | 2 сумісний |
| Балкон: | відсутній |
| Додатково: | новобудова |
Адреса: Київ, Печерський, Звіринець , Андрія Верхогляда вул. (Михайла Драгомірова), 30, м. Звіринецька(Дружби народів)
Пропонується на продаж простора 2-кімнатна квартира в сучасному житловому комплексі бізнес-класу НОРДІКА РЕЗІДЕНС, що розташований на вулиці Андрія Верхогляда(колишня Драгоманова), 30, Печерський район, Київ.
Це ідеальний варіант для тих, хто шукає комфорт та стиль у новому житлі.
Опис та переваги
Квартира має зручне та функціональне планування загальною площею 71, 2 м2, що дозволяє раціонально використати кожен квадратний метр.
Вона розташована на 11-му поверсі, що забезпечує чудовий краєвид. Завдяки розташуванню кімнати наповнені природним світлом протягом дня.
Наразі квартира бкз ремонту, що надає вам унікальну можливість облаштувати її на свій смак та втілити власні дизайнерські ідеї.
Це ідеальний простір для створення житла мрії з нуля, без необхідності підлаштовуватися під вже існуючий інтер'єр.
Переваги локації та інфраструктура
Житловий комплекс НОРДІКА РЕЗІДЕНС це сучасний квартал з власним середовищем. Тут є все для комфортного життя:
Закрита територія з відеоспостереженням та цілодобовою охороною.
Власний підземний паркінг, де ваше авто завжди буде в безпеці.
Розташування комплексу одна з його ключових переваг. Він знаходиться в безпосередній близькості до центру міста, що дозволяє швидко дістатися до всіх основних локацій Києва. Поруч є все необхідне для повсякденного життя:
Школи та дитячі садки, що є особливо важливим для сімей з дітьми.
Магазини, супермаркети та спортивні зали.
Будинок вже зданий в експлуатацію, і всі документи готові до продажу, тож угода може бути укладена швидко та без зайвих турбот.



















