Продаж однокімнатної квартири в ЖК Атлант на Озерній (№ 213-203-821)
Ціна: 46 000 $

Озерна, 27а, Новосілки, Фастівський, Київська
Характеристики
| Ціна: | 46 000 $ |
|---|---|
| № об'єкта: | 213-203-821 |
| Кімнат: | 1 розд |
| Поверх: | 5 / 20 ліфт |
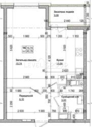
| Площа: | 41 / 16 / 10 м2 |
| Санвузол: | 1 сумісний |
| Балкон: | лоджія |
| Додатково: | новобудова |
Опис
Продаж однокімнатної квартири в ЖК Атлант на Озерній
Продам 1к.квартиру на 5 поверсі в ЖК Атлант на Озерній, с. Новосілки, Фастівський р-н. До м. Теремки 1,5 км.
Загальна площа квартири 40,74 кв.м. Гарне планування, в квартирі засклена лоджія, фасадні стіни утеплені мінеральною ватою, централізоване опалення, стяжка підлоги, чорнова штукатурка стін, розводка електрики,радіатори.













