Продається сучасна, світла квартира загальною площею 92,6 м² у новому житловому комплексі. (№ 213-203-622)

Ціна: 125 000 $
Характеристики
| Ціна: | 125 000 $ |
|---|---|
| № об'єкта: | 213-203-622 |
| Кімнат: | 3 розд |
| Поверх: | 9 / 25 ліфт |
| Площа: | 93 / 43 / 29 м2 |
| Санвузол: | 2 роздільний |
| Балкон: | лоджія |
| Додатково: | новобудова |
Адреса: Київ, Шевченківський, Дегтярівська вул., 25а, м. Шулявська
Продається сучасна, світла квартира загальною площею 92,6 м² у новому житловому комплексі.
Ідеальне планування: три окремі кімнати та велика кухня-вітальня — комфорт для всієї родини.
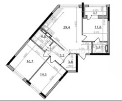
Планування:
-Кухня-вітальня — 29,4 м² — простора зона для спілкування, відпочинку та кулінарних експериментів;
- 3 окремі житлові кімнати — 16,7 м², 14,3 м², 11,6 м² — для батьківської спальні, дитячої та кабінету;
-2 санвузли — 4,8 м² і 3,1 м² — зручно для великої родини;
-Гардеробна — 3,8 м²;
-Лоджія — 3,7 м² для ранкової кави чи відпочинку ввечері.
Переваги:
-Раціональне планування без втрати площі;
-Великі вікна, багато денного світла;
-Сучасний будинок із якісних матеріалів бізнес класу;
-Зручне розташування — поруч школи, дитсадки, магазини, транспорт.
ЖК Poetica - це сучасний житловий комплекс, який пропонує своїм жителям:
Інформація про ЖК:
Комплекс бізнес-класу, будується на стилобаті, вент. фасад, монолітно-каркасна архітектура, наповнення стін - червона цегла. Можливе перепланування. Стелі 3м. Вітражні вікна Rehau. Квартира в готовому вигляді буде зі стяжкою підлоги, лічильниками, захищеними вхідними дверима Rodos, усіма комунікаціями, електронним лічильником і батареями. Центральне опалення. Ліфти ThyssenKrupp, підземний паркінг. Також в ЖК будуть дизайнерські парадні, зона відпочинку та дитячі майданчики на стилобаті, озеленення та велодоріжка, візок, зона очікування
Інфраструктура: Novus у стилобаті 1 колекції, до метро 10 хвилин пішки до м. Шулявка, зручна транспортна розв'язка, спортзал. Поруч 3 парки в пішій доступності.
Розташування в престижному районі Києва з розвиненою інфраструктурою.
Закриту та охоронювану територію з дитячими майданчиками, зонами відпочинку та спортивними майданчиками. Власну комерційну інфраструктуру (магазини, кафе, ресторани). Сервісну службу, яка забезпечить комфортне проживання.
Це чудова можливість для тих, хто шукає комфортну та затишну квартиру в престижному районі Києва!














