Історичний Печерськ 3 кімн квартира метро Арсенальна (№ 213-200-998)

Ціна: 149 900 $
Характеристики
Ціна: | 149 900 $ |
---|---|
№ об'єкта: | 213-200-998 |
Кімнат: | 1 розд |
Поверх: | 4 / 4 |
Площа: | 76 / - / 10 м2 |
Санвузол: | 1 |
Балкон: | балкон |
Адреса: Київ, Печерський, вул. Івана Мазепи, 12
Історичний Печерськ 3 кімн квартира метро Арсенальна
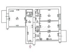
Трикімнатна квартира в центрі Києва, вул. Івана Мазепи, 12 загальною площею 76 кв метрів, розташована в царському фасадному будинку 1906 року з надійними залізобетонними перекриттями. Дах будинку після капітального ремонту, високі стелі 3.75 м створюють простір і атмосферу величі. Двостороннє планування квартири, всі кімнати окремі, великі вікна, вітальня та кухня мають вихід на балкони. Будинок розташований в історичному та діловому центрі столиці. 5 хвилин до метро Арсенальна — Києво-Печерська Лавра, Маріїнський парк,