Продаж квартири в ЖК Genesis + кладовка (№ 213-191-367)

Ціна: 59 999 $
Характеристики
| Ціна: | 59 999 $ |
|---|---|
| № об'єкта: | 213-191-367 |
| Кімнат: | 1 розд |
| Поверх: | 16 / 18 ліфт |
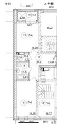
| Площа: | 47 / 14 / 14 м2 |
| Санвузол: | 2 роздільний |
| Балкон: | балкон |
| Додатково: | новобудова |
Адреса: Київ, Солом'янський, Індустріальний пров., 2, м. Шулявська
Продаж по переуступці квартирb в ЖК Genesis
Адреса: пров. Індустріальний
2секція 2пов.16. 47.45 м. кв. ( 48,3 по БТІ )
Найближча кладовка до сходів(цоколь) 5.1 квадрат.
Комплекс знаходиться на Індустріальному провулку 2, в пішій доступності від м. Шулявська, Політехнічний інститут.
Будинок комфорт класу. Поруч дитячий та спортивний майданчики.
Відмінна інфраструктура: транспорт в різному напрямку. ТЦ 'Аркадія', ТРЦ 'Мармелад', ТРЦ 'Космополіт', КПІ, НАУ, КНЕУ, технічний ліцей КПІ, школа №71, гімназія 'Ерудит'.
Будинок побудований. Скоро здається.










