Продаж однокімнатної квартири за адресою Львівська 22а (№ 213-185-490)

Ціна: 95 000 $
Характеристики
Ціна: | 95 000 $ |
---|---|
№ об'єкта: | 213-185-490 |
Кімнат: | 1 розд |
Поверх: | 20 / 25 ліфт |
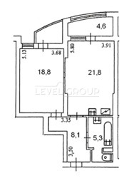
Площа: | 60 / 19 / 21 м2 |
Санвузол: | 1 сумісний |
Балкон: | балкон |
Адреса: Київ, Святошинський, Львівська вул., 22-а, м. Житомирська
Продам квартиру біля метро Житомирська
Львівська вулиця 22-А Сучасний монолітно каркасний будинок
розташований серед соснових парків в Святошинському р-ні Києва
Квартира площею 60 кв.м на 20/25 поверсі..
Планування: окрема спальня 19 кв.м, кухня студія 21 кв.м, 2 засклених балкони.
Продаємо разом з меблями та технікою.
Охайне парадне, 3 ліфти, консьєрж, доглянута прибудинкова територія з дитячими майданчиками, підземним та гостьовим паркінгом.
Поруч школи та садочки, супермаркети, магазини, кав’ярні, сквер Львівських митців та парк Котельникова, зелена оаза сучасного міста.