Пропонується в продаж 2-кімнатної квартири в ЖК Варшавський Плюс (№ 213-178-976)

Ціна: 89 000 $
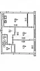
Характеристики
Ціна: | 89 000 $ |
---|---|
№ об'єкта: | 213-178-976 |
Кімнат: | 2 розд |
Поверх: | 2 / 18 ліфт |
Площа: | 62 / 26 / 17 м2 |
Санвузол: | 2 роздільний |
Балкон: | лоджія |
Додатково: | новобудова |
Адреса: Київ, Подільський, Виноградар, Олександра Олеся вул., 8/17
Світла, простора квартира з функціональним плануванням, яка складається з кухні-вітальні , окремих двох кімнат та два санвузла. Це ідеальний варіант для тих, хто шукає комфортне та просторе житло з можливістю організувати простір за власним смаком.
Квартира розташована у новобудові та знаходиться у стані після будівельників, що дозволить вам самостійно облаштувати її за своїми потребами та вподобаннями.
Вікна квартири виходять в двір.
На території житлового комплексу розташовані різноманітні інфраструктурні об'єкти, які зроблять ваше життя більш комфортним та зручним