Продаж 1-кімнатної квартири ЖК Теремки (№ 213-178-858)

Ціна: 52 000 $
Характеристики
| Ціна: | 52 000 $ |
|---|---|
| № об'єкта: | 213-178-858 |
| Кімнат: | 1 суміж, студія |
| Поверх: | 5 / 25 ліфт |
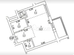
| Площа: | 37,2 / 16,9 / 5 м2 |
| Санвузол: | 1 сумісний |
| Балкон: | балкон |
| Додатково: | новобудова |
Адреса: Київ, Голосіївський, Теремки, Академіка Заболотного вул., 15-Б, м. Теремки
Продаж 1 кімнатної квартири ЖК Теремки вул. Академика Заболотного 15-Г
Забудовник -ІнтегралБуд
Будинок зданий в експлуатацію
Стан-після будівельників
5 зручний поверх 25 поверхового будинку
Площа: 37, 2/16, 9/5 та гардеробна кімната 3 м. кв
Балкон з видом у двір та ліс
Комплекс закритого типу з підземним паркінгом, гостьовим паркінгом , дитячими майданчиками. Поруч магазини, кафе, клініки тощо
Поруч парк ВДНГ







