Продаж одннокімнатної квартири в ЖК Dibrova Park (№ 213-159-173)

Ціна: 105 000 $
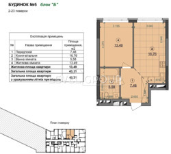
Характеристики
| Ціна: | 105 000 $ |
|---|---|
| № об'єкта: | 213-159-173 |
| Кімнат: | 1 розд |
| Поверх: | 8 / 23 ліфт |
| Площа: | 44 / 14 / 17 м2 |
| Санвузол: | 1 сумісний |
| Балкон: | лоджія |
| Додатково: | новобудова |
Адреса: Київ, Подільський, Віктора Некрасова вул. (Північно-Сирецька), 6, м. Нивки
Нова квартира після ремонту, з правом власності.
Вся техніка (Whirlpool & Samsung)
Всі меблі. Все залишається як на фото.
Тепла підлога (WiFi)
44 кв.м.
Будинок 5 (вул. Віктора Некрасова,6)
8 поверх з 23















