Дворівнева з терасою в ЖК San Francisco Creative House проспект Берестейський 67 (№ 213-157-332)
Ціна: 185 000 $

Берестейський просп. (Перемоги), 67, Київ, Святошинський, Святошин, м. Нивки
Характеристики
| Ціна: | 185 000 $ |
|---|---|
| № об'єкта: | 213-157-332 |
| Кімнат: | 5 розд |
| Поверх: | 17 / 18 ліфт |
| Площа: | 122 / 98 / 20 м2 |
| Санвузол: | 2 роздільний |
| Балкон: | тераса |
| Додатково: | новобудова |
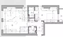
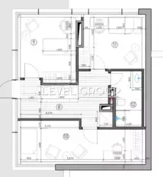
Опис
ЖК San Francisco Creative House продаж 5к квартири. 2 рівнева , перший рівень 70м2, на другому рівні 52 м2. та велика тераса 80м2. Коефiцент 0.3 тераси рахується тож загальна площа 147м2. (Реальна 200м2). Без ремонту.
Шикарна квартира з трьох-стороннiм краевидом на мiсто.









