ЖК “OkLand” — Простора 2- кімнатна квартира у зданому будинку (№ 213-148-506)

Ціна: 109 000 $
Характеристики
| Ціна: | 109 000 $ |
|---|---|
| № об'єкта: | 213-148-506 |
| Кімнат: | 2 розд |
| Поверх: | 7 / 24 ліфт |
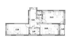
| Площа: | 76 / 35 / 19 м2 |
| Санвузол: | 2 роздільний + сумісний |
| Балкон: | лоджія |
| Додатково: | новобудова |
Адреса: Київ, Солом'янський, Чоколівка, Повітряних Сил просп. (Повітрофлотський), 56Г, м. Вокзальна
ЖК “OkLand” — Простора 2- кімнатна квартира у зданому будинку
Київ, проспект Повітряних Сил, 56
Будинок введено в експлуатацію — можна одразу розпочинати ремонт!
Право власності отримано
Є можливість придбати паркомісце у підземному паркінгу за пільговою ціною
Загальна площа — 76,3 м²
Поверх — 7 із 24
Стан — від забудовника
Планування:
• Кухня-їдальня — 19,13 м²
• Спальня 1 — 16,6 м²
• Спальня 2 — 18 м²
• Санвузол — 5 м²
• Гостьовий санвузол — 2,5 м²
• Вхідна група/передпокій — 13 м²
• Лоджія — 4,5 м²
- Оснащення: лазерна стяжка підлоги, панорамні вікна, встановлені радіатори, вхідні двері, лічильники на всі комунікації, пожежна сигналізація.
- Інфраструктура ЖК:
• Підземний паркінгу з ліфтом до поверху
• Концепція “двір без машин”
• Цілодобова охорона, відеоспостереження
• Закрита, озеленена територія з 4 спортивними майданчиками та 3 дитячими зонами
- Розташування та інфраструктура поруч:
• “Novus”, “Сільпо”, “АТБ”, “Велика Кишеня”, “Billa”, “Ультрамаркет”
• Ресторани, кав’ярні, стадіон, ринки
• Медичні заклади: клініка “Добробут”, лікарня, аптеки
• Дитсадки, школи, ліцеї
• Солом’янський ландшафтний парк — 29 га зелені
• Зручна транспортна розв’язка:
• До метро “Вокзальна” — 20 хв пішки
• До Хрещатика — 8 хв на авто














