Продаж 3-кімнатної квартири по вул. Воскресенській, 18А ЖК Паркові озера Дніпровській район метро Дарниця (№ 213-147-247)
Ціна: 119 000 $

Воскресенська вул., 18А, Київ, Дніпровський, Воскресенка, м. Дарниця
Характеристики
| Ціна: | 119 000 $ |
|---|---|
| № об'єкта: | 213-147-247 |
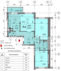
| Кімнат: | 3 розд |
| Поверх: | 13 / 25 ліфт |
| Площа: | 85,20 / 46 / 12,33 м2 |
| Санвузол: | 1 сумісний |
| Балкон: | балкон |
| Додатково: | новобудова |
Опис
Продаж 3-кімнатної квартири по вул. Воскресенській, 18А
ЖК Паркові озера
Дніпровський район
Масив Воскресенка
Квартира з роздільним плануванням.
Стіни оштукатурені, на підлозі стяжка.
Гарне планування.
Проєкт від забудовника: Інтергал-Буд
Комфорт клас
Опалення: централізоване
Технологія будівництва: монолітно-каркасна
Стіни: керамоблок
Висота стелі: 2,7 м
Будинок введено в експлуатацію в 4 кварталі 2018 року
Право власності більше 3 років
Сучасна інфраструктура, зручна транспортна розв’язка.
Розташувався ЖК біля парку «Перемога».
Тут облаштовано дитсадок, спортивні майданчики, спеціалізовані поля для футбольних і баскетбольних ігор.








