Продаж 1-кімнатної квартири по вул. Осінній (№ 213-138-094)
Ціна: 60 000 $

Осіння вул., 28, Київ, Шевченківський, м. Нивки
Характеристики
| Ціна: | 60 000 $ |
|---|---|
| № об'єкта: | 213-138-094 |
| Кімнат: | 1 розд |
| Поверх: | 4 / 5 |
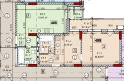
| Площа: | 39 / 15 / 9 м2 |
| Санвузол: | 1 сумісний |
| Балкон: | балкон |
| Додатково: | новобудова |
Опис
Продаж 1-кімнатної квартири по вул. Осінній.
В зданому клубному будинку A Nova House 2.
Загальна площа 39 м2. 31.33м2 - квартира + балкон 8,14 м2
4 поверх з 5
Будинок вже введений в експлуатацію, всі комунікації підключені, можна заходити на ремонт.
Вікна виходять в двір.
Поруч є все, що необхідно для комфортного проживання - магазини, аптеки, банки, зручна транспортна розвязка та метро в пішій доступності.











