ЖК Edelweiss House 1к 56,40м2 Звіринецька 72 Печерськ Липки. (№ 213-132-283)

Ціна: 118 500 $
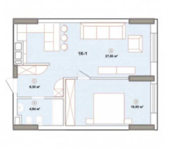
Характеристики
Ціна: | 118 500 $ |
---|---|
№ об'єкта: | 213-132-283 |
Кімнат: | 1 розд |
Поверх: | 19 / 24 ліфт |
Площа: | 56 / 15 / 28 м2 |
Санвузол: | 1 сумісний |
Балкон: | відсутній |
Додатково: | новобудова |
Адреса: Київ, Печерський, Звіринець , Звіринецька вул., 72, м. Звіринецька(Дружби народів)
Продається видова 1-кімнатна квартира в ЖК Edelweiss House у Печерському районі Києва. ЖК Edelweiss House — це комплекс бізнес-класу, що розташований в Печерському районі Києва за адресою вулиця Звіринецька, 72. Перша секція. Квартира після будівельників. Про ЖК Edelweiss House Житловий комплекс Edelweiss House – це преміальна нерухомість у центрі столиці: - Архітектура: сучасний стиль, панорамні вікна - Безпека: закрита територія, цілодобова охорона, відеоспостереження - Паркінг: підземний із зарядками для електромобілів - Сервіс: консьєрж, дизайнерські холи та зони відпочинку Локація та інфраструктура: - Метро: Дружби Народів (15 хвилин пішки) - Парк: Ботанічний сад ім. Гришка (5 хвилин на авто) - ТРЦ та магазини: Ocean Plaza, Novus, Silpo - Освіта: Британська міжнародна школа, ліцей «Лідер» - Фітнес та спорт: Sport Life, преміум-фітнес-клуби - Ресторани та кав’ярні