Продаж 2-кімнатної квартири в ЖК Сирецькі Сади (№ 213-131-182)

Ціна: 95 000 $
Характеристики
Ціна: | 95 000 $ |
---|---|
№ об'єкта: | 213-131-182 |
Кімнат: | 2 розд |
Поверх: | 20 / 22 ліфт |
Площа: | 73 / 38 / 15 м2 |
Санвузол: | 2 роздільний |
Балкон: | балкон |
Додатково: | новобудова |
Адреса: Київ, Подільський, Івана Виговського вул. (Маршала Гречка), 10л
Продаж 2-кімнатної квартири в ЖК «Сирецькі Сади»
Адреса: Подільський район, Київ
Поверх: 20 із 22
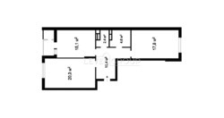
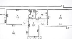
Площа: 73.1 м²
Житлова: 38.1 м²
Кухня: 15.1 м²
Планування:
Двостороння квартира
Кімната 17.8 м² із видом на Сирецький ліс (східна сторона)
Кімната 20.3 м² та кухня 15.1 м² із виходом на засклений балкон 2.5 м² (західна сторона, вид у двір та на мікрорайони Нивки і Виноградар)
Балкон частково відкритий
Роздільний санвузол: 2.4 м² та 4.6 м²
Стан квартири:
Виконана електропроводка
Лазерна стяжка підлоги від забудовника
Гіпсова штукатурка стін
Встановлені радіатори опалення
Вікна: металопластикові двокамерні склопакети вітражного типу
Броньовані двері
Розведена сантехніка по квартирі
Лічильники на тепло, воду та електрику (однозональний)
Будинок утеплений забудовником (газоблок + утеплювач), що забезпечує енергоефективність
Переваги ЖК «Сирецькі Сади»:
Закрита територія з цілодобовою охороною
Власна котельня
Тихий зелений район: житловий комплекс збудований на території колишнього квітництва, поруч Сирецький ліс
Зручна локація:
10 хв на авто до метро «Сирець»
Будівництво станції метро «Мостицька» (менше 1 км пішки) наразі призупинено