Продаю 3-х кімнатну квартиру на Шулявці, поруч з метро та парком КПІ (№ 213-114-942)

Ціна: 135 000 $
Характеристики
| Ціна: | 135 000 $ |
|---|---|
| № об'єкта: | 213-114-942 |
| Кімнат: | 4 розд |
| Поверх: | 16 / 16 ліфт |
| Площа: | 85 / - / 16 м2 |
| Санвузол: | 2 роздільний + сумісний |
| Балкон: | балкон |
Адреса: Київ, Солом'янський, Олексія Тихого вул. (Виборзька), 25, м. Шулявська
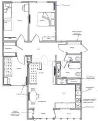
Продаю комфортну 4-х кімнатну квартиру за адресою вул. Олекси Тихого, буд 25
При відносно невеликій площі у квартирі є все, що необхідне для комфортного проживання: ТРИ окремі спальні (доросла спальня, дитяча, кабінет/друга дитяча), велика простора студія (хол, вітальня, кухня, столова зона та лоджія), ДВА окремі санвузли, вхідний тамбур, балкон та гардеробна кімната.
У квартирі був зроблений якісний капітальний ремонт. Є вся необхідна для життя техніка (Boshe, Electrolux) та меблі: формат квартири «заїдь та живи». В усіх кімнатах (окрім дитячої) встановлені кондиціонери, є бойлер на 80 л., на кухні та в санвузлах теплі підлоги. Є лічильники на воду.
Будинок – проект «совмін» з цегли. Квартира двостороння. Вікна виходять на схід та захід (влітку квартира не нагрівається через надлишок сонця). Стіни будинку з півночі та заходу додатково утеплені зовні. З вікон відкривається панорамний краєвид на місто Київ. Дах капітально відремонтований.
Дуже вдалє розташування будинку - 10 хв. пішки ст.м. метро Шулявська, швидкісний трамвай, парк КПІ та атмосферний кампус Політеху. Поруч є три великі торгові центри: Космополіт, Мармелад та Аркадія. На сусідній вулиці спеціалізована школа-дитячий садок 'Відродження'. Біля будинку є бювет із питною водою. Поруч найбільший в місті SportLife з басейном та сауной.
У будинку є консьєрж та відеоспостереження, вхід у квартиру через окремий, закритий тамбур з сусідами. У внутрішньому подвір`ї будинку є паркувальні місця для автівки.

























