Продаж 3-кімнатної квартири в ЖК Абрикосовий (№ 213-103-286)

Ціна: 63 000 $
Характеристики
| Ціна: | 63 000 $ |
|---|---|
| № об'єкта: | 213-103-286 |
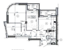
| Кімнат: | 3 розд |
| Поверх: | 5 / 26 ліфт |
| Площа: | 75 / 40 / 13 м2 |
| Санвузол: | 2 роздільний + сумісний |
| Балкон: | балкон |
| Додатково: | новобудова |
Адреса: Київ, Голосіївський, Жулянська вул., 3, м. Теремки
3-х кіматна квартира в новобудові ЖК 'Абрикосовий ' в місті Києв, ЖК Абрикосовий, метро Теремки Квартира з ідеальним плануванням від будівельників з чистовою обробкою, 3 роздільні кімнати та окрема кухня, поверх 5 в будинку 3. житлова 40м2; 13м2; 10м2 , кухня-13м2 . Квартира в монолітно-каркасному будинку поруч з ТЦ Епіцентр ,ТЦ Республіка, ТЦ Метро, великий ринок. Але разом з цим місце тихе, зелене, малолюдне. Поруч достатньо садочків та шкіл. Вікна квартири виходять на елітний приватний сектор Гатного. В квартирі 2 санвузли, лічильники, радіатори, лазерна стяжка підлоги, броньовані вхідні двері. Балкон та лоджія засклені. Своя закрита територія ЖК, поряд парк.









