Продається ексклюзивна однокімнатна квартира 52 м2 в ЖК Ревуцький (№ 213-088-079)

Ціна: 98 000 $
Характеристики
| Ціна: | 98 000 $ |
|---|---|
| № об'єкта: | 213-088-079 |
| Кімнат: | 1 розд |
| Поверх: | 23 / 25 ліфт |
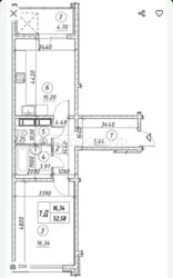
| Площа: | 52.5 / 16.4 / 15.2 м2 |
| Санвузол: | 1 роздільний |
| Балкон: | лоджія |
| Додатково: | новобудова |
Адреса: Київ, Дарницький, Осокорки, Ревуцького вул., 54 Б, м. Харківська
Продаж 1 к квартира з ремонтом в ЖК Ревуцький, вул. Ревуцького 54Б, Дарницький район, м. Київ.
Площа: 52,58/16,4/15,2 м²
Поверх: 23 з 25 (плюс технічний поверх)
Особливості:
- Стильний сучасний ремонт з використанням високоякісних матеріалів
- Двостороннє планування з великою кухнею-вітальнею
- Панорамні вікна з запаморочливим видом
- Облаштована зі смаком, квартира створена для того, щоб дарувати радість власникам
- Вся обстановка, включаючи сучасний живопис українських та іноземних митців, залишається у квартирі
- Взимку в квартирі тепло і без опалення
- санвузол окремо ванна і окремо туалет.
Будинок:
- ЖК 'Ревуцький' зданий і заселений
- Зовнішнє утеплення: вентильований фасад HOSTROCK з мінеральної вати, гідроізоляції та керамічна облицювальна плитка
- Своя індивідуальна котельня (автономне опалення, будинок не залежить від міської тепломережі)
- Вхідні двері сталеві, протиударні
Інтер'єр:
- Вишуканий сучасний інтерʼєр прикрашає живопис.
Велика шафа в спальні з фурнітурою клік-клак.
- Шпалери, ламінат, повний комплект сантехніки
- Міжкімнатні двері, вікна REHAU, мідна проводка
- Розетки, вимикачі, радіатори опалення з термостатами
- Повний комплект лічильників, індивідуальний лічильник на тепло, горизонтальне розведення теплотруб, підлога не холодна в опалювальний сезон
Інфраструктура:
- Пішки до метро 'Харківська' лише 12 хвилин
- Магазини, супермаркети, ТРЦ, салони краси, спортклуби, ресторани, кафе, школи, садки та медичні центри у пішій доступності
Додаткові переваги:
- Три ліфти, включаючи вантажний пожежний ліфт
- Консьєрж у парадному
- Відеоспостереження для вашої безпеки
- Унікальне планування, таких квартир у комплексі всього 58
Ця квартира – справжній скарб для тих, хто шукає комфорт, стиль та затишок у поєднанні з усіма перевагами життя у сучасному житловому комплексі.

























