Продам 2кімнатну квартиру в царському будинку з фасадним парадним та ліфтом. (№ 213-061-893)

Ціна: 138 000 $
Характеристики
Ціна: | 138 000 $ |
---|---|
№ об'єкта: | 213-061-893 |
Кімнат: | 2 розд |
Поверх: | 3 / 4 ліфт |
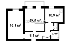
Площа: | 63 / 35 / 11 м2 |
Санвузол: | 1 роздільний |
Балкон: | балкон |
Адреса: Київ, Голосіївський, Ділова вул. (Димитрова), 11, м. Олімпійська
Ділова вул. (Димитрова), 11, м. Олімпійська
Продам квартиру в царському будинку з фасадним парадним та ліфтом.
Розташована в центрі міста біля Ст М Олімпійська в тихій частині вулиці.
В будинку газ.
Квартира в жилому стані, були замінені вікна, одностороння, з панорамними вікнами та заскленим балконом, з видом у двір на дитячий майданчик.
Дуже тепла і світла.
Техіка в квартирі залишаеться: пральна манина, холодильник, свч.
Є паркомісце у дворі, поруч паркова зона, бювет.
Ст М Олімпійська - пів квартала, супермаркет Мегамаркет, ТЦ Олімпійський.
Просторі кімнати та кухня, стелі 4 м.
Несуча конструкція тільки одна - між кімнатами, коридор, кухня, та спальня з балконом - тонкі перегородки.
Залізобетон! - реконструкція будинку у 1986 році.
Вільна.
Документи готові для угоди