Продаж 2-кімнатної квартири в ЖК OKLAND (№ 213-052-003)

Ціна: 112 000 $
Характеристики
Ціна: | 112 000 $ |
---|---|
№ об'єкта: | 213-052-003 |
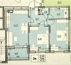
Кімнат: | 2 розд |
Поверх: | 23 / 24 ліфт |
Площа: | 77 / 32 / 22 м2 |
Санвузол: | 2 роздільний |
Балкон: | балкон |
Додатково: | новобудова |
Адреса: Київ, Солом'янський, Повітряних Сил просп. (Повітрофлотський), 56
Продаж 2-кімнатної квартири в ЖК OKLAND по пр. Повітрофлотському. Найкраще планування в комплексі. Видова квартира. 3-й будинок, 3-а секція. Поверх 23 із 24. Загальна площа - 77,13. Будинок збудований та введений в експлуатацію. Стан від забудовника: на підлозі лазерна стяжка, встановлені панорамні вікна, радіатори, вхідні двері, лічильники на все, пожежна сигналізація. Встановлено систему енергозберігаючих квартир. Внутрішня територія закрита. Своя велика озеленена територія, 4 спортивні майданчики та 3 просторі дитячі ігрові зони. ЖК Окленд - побудований за концепцією - 'двір без машин' з цілодобовою територією, що охороняється, відеоспостереженням, підземним паркінгом для мешканців комплексу і наземним для гостей. Поблизу кілька супермаркетів великих торгових мереж: до магазину Billa - 2 хвилини пішки, до «Фуршету» - 5 хвилин, до «Реал Маркета» і «Сільпо» - 11 хвилин, а до Novus і «АТБ» - 13 хвилин пішки. Поруч фітнес-клуби, тренажерні зали, в 10 хвилинах їзди крите та відкрите футбольне поле. До дитячого садка з яслами №146 та дитячого садка «Словяночка» - 8 хвилин пішки, до дитячого садка «Родзинка» - 10 хвилин пішки, а до дитячих садків №191 і №376 можна дійти за 15 хвилин. В районі достатня кількість шкіл: №64, №376, №69, гімназії №144 та приватній школі «Перлина». У пішої доступності від комплексу музична школа №33, №7, мовні школи..