Продаж 2-поверхової 4-кімнатної квартири по вул. Петропавлівській (№ 213-041-354)

Ціна: 132 000 $
Характеристики
| Ціна: | 132 000 $ |
|---|---|
| № об'єкта: | 213-041-354 |
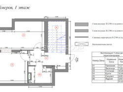
| Кімнат: | 4 розд |
| Поверх: | 8 / 12 ліфт |
| Площа: | 120 / 74 / 12 м2 |
| Санвузол: | 1 сумісний |
| Балкон: | балкон |
Адреса: Київ, Подільський, Петропавлівська вул., 50б
Продаж 4-кімнатної 2-поверхової квартири по вул. Петропавлівській. Київ, Куренівка. Квартира без ремонту, двоповерхова (пентхаус) з 2 балконами + окремо тераса. Сучасна інфраструктура, зручна транспортна розв'язка, є все для комфортного життя.


















