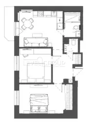
Продаж 2к квартири вул. Шовковична, 23, площею 61,8 кв.м. (№ 213-035-487)

Ціна: 265 000 $
Характеристики
Ціна: | 265 000 $ |
---|---|
№ об'єкта: | 213-035-487 |
Кімнат: | 2 розд |
Поверх: | 4 / 6 |
Площа: | 61,8 / 27,3 / 16,9 м2 |
Санвузол: | 2 роздільний + сумісний |
Балкон: | балкон |
Адреса: Київ, Печерський, Печерськ, Шовковична вул., 23
Продається 2-х кімнатна квартира з ремонтом 2024 року за адресою: вул. Шовковична,23, загальною площею 61,8 кв. м. Квартира розташована на 4 поверсі 6-поверхового будинку в історичному престижному районі м. Києва. Поруч Кловський ліцей, Київський академічний театр юного глядача, парк ім. Богомольця, Маріїнський парк. Найближчі станції метро Хрещатик, Кловська, Палац спорту. Недалеко ТРЦ Гулівер, ТРЦ Мандарин плаза, Бесарабський ринок, Goodwine.
Квартира оснащена всією необхідною технікою і меблями. Усе нове.
У квартирі виконано капітальний ремонт:
- замінені живильний кабель, розводка кабелів усередині квартири, прилад обліку ел.енергії
- скління: 5ти камерний профіль REHAU, склопакет-2х камерний
- інстальовані системи водопостачання/водовідведення REHAU
- сантехніка Grohe
- теплі підлоги в санвузлах
- керамограніт Іспанія/Італія
- встановлені вхідні двері за індивідуальним замовленням мають опцію безключечного доступу
- міжкімнатні фарбовані двері RODOS
- кондиціонування: інвертори Cooper Hunter у кожному приміщенні
- домофон, відеоспостереження, інтернет
Характеристика будинку:
Однопід'їздний будинок 1951 року побудови, дві квартири на поверсі, ліфт, внутрішній двір, консьєрж.