Продаж 2-кімнатної квартири по вул. Юрія Кондратюка (№ 213-034-106)
Ціна: 120 000 $

Юрія Кондратюка вул., 1, Київ, Оболонський, Мінський, м. Героїв Дніпра
Характеристики
| Ціна: | 120 000 $ |
|---|---|
| № об'єкта: | 213-034-106 |
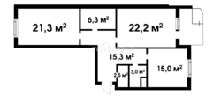
| Кімнат: | 2 розд |
| Поверх: | 6 / 25 ліфт |
| Площа: | 94 / 34 / 15 м2 |
| Санвузол: | 2 роздільний + сумісний |
| Балкон: | балкон |
| Додатково: | новобудова |
Опис
Продаж 2-кімнатної квартири по вул. Юрія Кондратюка. 2 кімнати, 2 санвузла, гардеробна і просторий балкон. Сучасна інфраструктура, зручна транспортна розв'язка, є все для комфортного життя.










