Продаж 3-кімнатної 2-рівневої квартири в ЖК Багговутівський (№ 213-021-755)

Ціна: 190 000 $
Характеристики
| Ціна: | 190 000 $ |
|---|---|
| № об'єкта: | 213-021-755 |
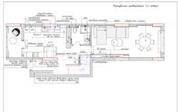
| Кімнат: | 3 розд |
| Поверх: | 23 / 24 |
| Площа: | 119 / 58 / 25 м2 |
| Санвузол: | 2 роздільний |
| Додатково: | новобудова |
Адреса: Київ, Шевченківський, Загорівська вул. (Багговутівська), 21
Продаж 3-кімнатної квартири в ЖК Багговутівський. Відова 3х кімнатна, дворівнева. Ст. м. Лукянівська. Будинок зданий в експлуатацію.. Будинок переданий в правління ОСББ. В ЖК вже є заселені квартириu2028. Просторна, з панорамними вікнами.Побудований з червоної цегли, фасади утеплені, є своя котельня, двокамерні якісні вікна, металеві протиударні двері. 2028 Зручна транспортна розвязка: до зупинки маршруток 5 хв ходьби, до метро Лукянівка 15 хв їзди В трьох хвилинах ходьби - Сільпо, ТЦ Променада, парковка. Поряд є садочок і школа.На ліфті можна спуститись в підземний паркінг. Зроблений дизайн-проект 4000$ віддамо в подарунок!.








