ЖК Грейт Great 1кім квартира 47кв.м вул.Причальна, 12 (№ 212-962-356)

Ціна: 80 000 $
Характеристики
Ціна: | 80 000 $ |
---|---|
№ об'єкта: | 212-962-356 |
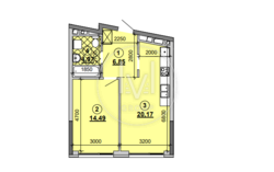
Кімнат: | 1 розд |
Поверх: | 22 / 26 ліфт |
Площа: | 46 / - / 20 м2 |
Санвузол: | 1 сумісний |
Балкон: | відсутній |
Додатково: | новобудова |
Адреса: Київ, Дарницький, Причальна вул., 12, м. Осокорки
Продам 1кімнатну квартиру в ЖК Грейт! Можливий продаж по програмі єОселя
Будинок - 1 (вул. Причальна 12)
Поверх - 2226
Тип планування - 1с3
Загальна площа - 47м²
Новий сучасний ЖК Грейт, який стоїть на березі Дніпра в Дарницькому районі, поруч з метро Осокорки, Позняки! Має просторий двір з ландшафтною територією та великими дитячими майданчиками.
Підземний паркінг під будинками, в який спускається ліфт.
Поруч знаходиться ТРЦ River Mall, NOVUS, «Сільпо».
Є інші пропозиції квартир.
Ціна 80000у.е