Продам однокімнатну квартиру, біля ТРЦ 'Лавіна' ЖК “Lalalend” (№ 212-953-288)
Ціна: 85 000 $

Берковецька вул., 6а, Київ, Святошинський, Берковець, м. Академмістечко
Характеристики
| Ціна: | 85 000 $ |
|---|---|
| № об'єкта: | 212-953-288 |
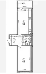
| Кімнат: | 1 розд |
| Поверх: | 10 / 13 ліфт |
| Площа: | 49 / 17 / 17 м2 |
| Санвузол: | 1 сумісний |
| Балкон: | лоджія |
| Додатково: | новобудова |
Опис
Продам однокімнатну квартиру, біля ТРЦ 'Лавіна' ЖК “Lalalend”
Будинок зданий, адреса почтова надана, є документи, право власності.
Гарна інфраструктура, до м. Академмістечко 10 хв на транспорті. Поряд 40 га лісу. Закрита територія, цілодобова охорона, 2 ліфти. Є утриття, у будинку своя котельня та генератор.
Квартира з гарним краєвидом, двухстороння, знаходиться на 10-му поверсі з 13-ти. Є 2 окремі кімнати (спальня та кухня студія) гардероб, лоджія достатньо велика з панорамними вікнами. Ремонту менше року, робили для себе.
В квартирі залишається практично все крім телевізора














