Продаж 1 кімнатної квартири, вид на Дніпро (№ 212-933-388)

Ціна: 85 000 $
Характеристики
| Ціна: | 85 000 $ |
|---|---|
| № об'єкта: | 212-933-388 |
| Кімнат: | 1 розд |
| Поверх: | 15 / 26 ліфт |
| Площа: | 50 / 19 / 12 м2 |
| Санвузол: | 1 сумісний |
| Балкон: | балкон |
| Додатково: | новобудова |
Адреса: Київ, Оболонський, Набережно-Рибальська дорога, 27, м. Почайна
Продаж 1 кімнатної квартири з балконом ЖК Dock32
Вид з вікна на ТРЦ Блокбастер, ЖК Рибальский та Поділ.
Поверх: 15 з 26
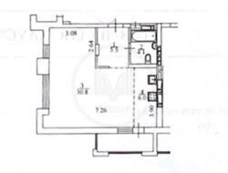
Планування: окрема спальня, велика кухня-вітальня, коридор, санвузол та балкон.
Можливість перепланування у двокімнатну
Ремонт після будівельників: стяжка підлоги та штукатурні роботи.
Локація: Оболонський район, пр-т Степана Бандери, 32д, близько до Подолу, центру та набережної.
Станції метро: Почайна, Оболонь та Поштова площа.
Розвинута інфраструктура: ТРЦ Блокбастер та Парк Наталка в пішій доступності.
Сучасний підземний паркінг з ліфтом, є місця для тимчасової парковки та розвантаження авто.
Закритий двір з дитячим майданчиком та лавочками.
Безпека: консьєрж, охорона та відеоспостереження в будинку.. Є спільна зона відпочинку на стилобаті..
Оболонський район, Петрівка, Поділ, Подол, Набережна, Док32, DOCK32.













