Продаж 2-х кімнатної квартири в ЖК Rybalsky (№ 212-885-825)
Ціна: 120 000 $

Набережно-Рибальська дорога, 11, Київ, Оболонський, м. Тараса Шевченка
Характеристики
| Ціна: | 120 000 $ |
|---|---|
| № об'єкта: | 212-885-825 |
| Кімнат: | 2 розд |
| Поверх: | 6 / 10 ліфт |
| Площа: | 72 / 26 / 21 м2 |
| Санвузол: | 1 роздільний |
| Балкон: | лоджія |
| Додатково: | новобудова |
Опис
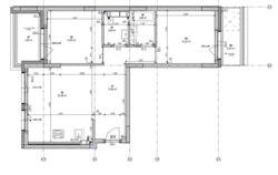
Продаж 2-х кімнатної квартири в ЖК Rybalsky. 11-ий будинок, секція 5, поверх 6. Вікна виходять як у внутрішній двір, так і на зовні, на 9-ий будинок. Дві лоджії з обох боків будинку. Кухня-вітальня обєднана з коридором: 21.66 м + 13.85 м. Спальні: 12.55 м та 13.33 м. Будинок активно будується та знаходиться на фінальних стадіях будівництва. Ідеальне розташування - комплекс біля Дніпра між районом Оболонь та історичним Подолом. На перших фото варіант планування, де кухня перенесена на місце однієї з кімнат, а спальня має розсувні двері. Дизайн-проекту немає, але по плануванню надамо більше рендерів за потреби. Далі план поточного планування та фото самої квартири у тому плануванні, що на плані.

















