Елітна чотирикімнатна в закритому ЖК (№ 212-879-970)

Ціна: 450 000 $
Характеристики
Ціна: | 450 000 $ |
---|---|
№ об'єкта: | 212-879-970 |
Кімнат: | 4 розд |
Поверх: | 2 / 8 ліфт |
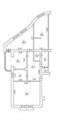
Площа: | 130 / 84 / 33 м2 |
Санвузол: | 1 сумісний |
Балкон: | балкон |
Додатково: | новобудова |
Адреса: Київ, Протасів Яр вул., 8
Продам 4-х кімнатну квартиру у ЖК «АЛЬПІЙСЬКИЙ». Загальна площа 130 м. кв. Ремонт 2023 року. Електротехніка світових лідерів: Miele, Daikin, Siemens, Dragica та інш. Якісні оздоблюваючі матеріали ! Сучасний коштовний дизайн та меблі! Висота чистої стелі 3. 20м. ВСЕ робилося для себе! Заходи і живи! Також є паркомісце (окремо! ).