Фасадний цоколь Приміщення Варшавський 2 (№ 2-499-259)
Ціна: 125 000 $

Характеристики
Ціна: | 125 000 $ |
---|---|
№ об'єкта: | 2-499-259 |
Тип: | торгівельні площі, кафе, бар, ресторан, об'єкт сфери послуг, інше |
Поверх: | -1 / 24 |
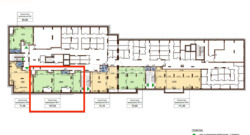
Площа: | 108 м2 |
Додатково: | окремий вхід |
Адреса: Київ, Подільський, Виноградар, Родини Крістерів вул., 16
Фасадний цоколь Приміщення Варшавський 2.
ЖК Варшавський 2 Будівля 10.1 Будинок введено в експлуатацію Нежитловий фонд 108 м2 1-й поверх великі вітрини, розташовані відразу біля входу в вхідні двері Електроенергія до 25 кВт Стелі h 3,6м Чудова локація, приміщення правильною форми, ЖК Варшавський 2 — новий житловий комплекс від Stolitsa Group! Це сучасні квартали з цілісною архітектурою та будинками комфорт-класу різної поверховості, що стане частиною Варшавського масиву. Комплекс має власну інфраструктуру на території, дитячі та спортивні майданчики, багаторівневі паркінги, закритий внутрішньодворовий простір та місця для відпочинку..