Продаж. Магазин. 435м. Торгове приміщення. Фасад на О.Олеся. (№ 24-102-260)
Ціна: 1 090 000 $

Характеристики
Ціна: | 1 090 000 $ |
---|---|
№ об'єкта: | 24-102-260 |
Тип: | торгівельні площі |
Поверх: | 1 / 2 |
Площа: | 435 м2 |
Додатково: | парковка |
Адреса: Київ, Подільський, Виноградар, Олександра Олеся вул., 8а
ПРОДАЖ ФАСАДНОГО КОМЕРЦІЙНОГО ПРИМІЩЕННЯ | ЖК Варшавський Плюс
Адреса: вул. Олександра Олеся, 8А
Комплекс: ЖК Варшавський Плюс (3888 квартир — високий пішохідний та автомобільний трафік)
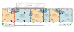
Загальна площа: 435 м²
Потужність: 80 кВт
Перший поверх — 314 м², висота стелі 3.8 м (з орендарем, стабільний дохід)
Другий поверх — 122 м², висота стелі 3.3 м (вільний, під будь-який бізнес)
Окрема зона розвантаження, зручний під’їзд для вантажного транспорту
Фасадне розташування з великими вітринами — чудова видимість та рекламний потенціал
Будівля введена в експлуатацію, всі комунікації підключені
Розташування у центрі житлового комплексу Варшавський Плюс — один із найбільш населених районів Києва
Поруч — новобудови, магазини, кафе, фітнес-клуби, аптеки
Високий трафік мешканців забезпечує стабільний потік клієнтів
Ідеально під ресторан, супермаркет, торгово-офісний центр, салон краси, шоурум, медичну клініку
Телефонуйте зараз, щоб дізнатися більше та домовитися про перегляд.
Це вигідна інвестиція у готовий бізнес-простір у найпопулярнішому районі Києва!