Оренда офісув Бізнес-центрі Південний Палац вул. Володимирська 4, в Шевченківському районі. (№ 15-123-337)
Ціна: 6 000 $ + комунальні

Адреса: Володимирська вул., 4, Київ, Шевченківський, м. Золоті ворота
Характеристики
| Ціна: | 6 000 $ + комунальні |
|---|---|
| № об'єкта: | 15-123-337 |
| Поверх: | 3 / 7 |
| Площа: | 300 м2 |
| Додатково: | кондиціонер |
Опис
СВІТЛО НЕ ВІДКЛЮЧАЮТЬ!
Вашій увазі пропонуються офіси в довгострокову оренду у центрі Києва який підкорює своїми панорамними краєвидами на Ардріївську церкву, Андріївський узвіз, Музей Історії України. Бізнес-центрі Південний Палац вул. Володимирська 4, в Шевченківському районі.
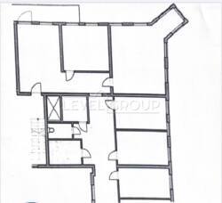
Офіс на 3-му поверсі
Загальна площа 300 кв. м
Висота стелі 3.5
Кабинетів 6
1 санвузол
1 кухня
Приміщення під сервену
Стан приміщення: сучасний ремонт
Приміщення передається з ремонтом та включає 6 кабінетів, 1 санвузол, серверну та кухню. У будівлі є ліфт та охорона.
Прекрасне місце розташування офісу: зручна транспортна розв'язка і все необхідне для успішного бізнесу.
Офіс у центрі Києва підкорює своїми панорамними краєвидами на Ардріївську церкву, Андріївський узвіз, Музей Історії України. У пішій доступності розташовані Софіївська та Михайлівська площі, а також метро Золоті Ворота, Майдан Незалежності, Контрактова та Поштова площі, фунікулер. Високі стелі, вдале кабінетне планування та наявність балкона у кожному офісі створює затишну робочу атмосферу. На перших поверхах розташовані 2 ресторани, барбершоп та банк. Інфраструктура в окрузі: державні установи, готелі, ресторани та кафе різного рівня, банки, аптеки.
Найближчі орієнтири:
Пейзажна алея, Старокиївська гора, гора Уздихальниця, Сквер Литовський, Сквер Небесної Сотні.



























