Здається будинок Софіївська Борщагівка, Бучанський, Київська (№ 1-357-002)
Ціна: 1 500 $ + комунальні

Адреса: Софіївська Борщагівка, Бучанський, Київська
Характеристики
| Ціна: | 1 500 $ + комунальні |
|---|---|
| № об'єкта: | 1-357-002 |
| Тип: | таунхаус |
| Поверхів: | 2 |
| Спалень: | 4 |
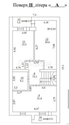
| Площа будинку: | 145 м2 |
| Ділянка: | 1,6 сот |
Опис
Оренда нового таунхауса 145 м? | 3 спальні + кабінет | Софіївська Борщагівка
Здається просторий таунхаус з новим ремонтом у тихій та зручній локації — Софіївська Борщагівка. Ідеальний варіант для сім’ї, яка цінує комфорт, простір та приватність.
? Площа будинку: 145 м?
Планування:
• велика кухня-вітальня 35 м?
• 3 спальні кімнати
• кабінет (можна як дитячу або робочу кімнату)
• санвузли
• простора зона відпочинку
? На території є зона для барбекю — ідеально для відпочинку з родиною та друзями.
Комунікації:
? Газ
? Електрика
? Власна свердловина
? Біосептик (сучасна каналізація)
? Новий якісний ремонт, будинок ще майже не використовувався.
? Локація: Софіївська Борщагівка — поруч Київ, зручний виїзд у місто, магазини, школи, садочки та вся необхідна інфраструктура.
? Телефонуйте для перегляду — будинок дійсно вартий уваги.











