Новий дуплекс з гаражем, Крюківщина, Гатне (№ 22-440-654)
Ціна: 95 000 $

Адреса: Крюківщина, Бучанський, Київська
Характеристики
| Ціна: | 95 000 $ |
|---|---|
| № об'єкта: | 22-440-654 |
| Тип: | будинок |
| Поверхів: | 2 |
| Спалень: | 5 |
| Площа будинку: | 150 м2 |
| Ділянка: | 5 сот |
| Додатково: | гараж |
Опис
Новий дуплекс, Крюківщина, метро Теремки, зупинка Столічний ринок 10 хв пішки
Район активно розвивається, поруч КМ Кримський квартал, Beverly Hills Residence, КМ Південна Баварія, ЖК Оранж Парк, ЖК Молодіжний, ЖК Вдалий, вся необхідна інфраструктура.
1 км від Окружної, біля Столичного ринку. Перспективний район, нова забудова.
Поруч вже побудовані таун-хауси, є сусіди. Поряд нова дорога.
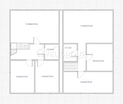
Площа дуплексу з гаражем - 150 кв.м., 2 поверхи ( дуплекс 5 кімнат, 2 санвузли, кухня-їдальня з виходом на терасу. Ділянка – загальна площа 5 соток, цільове призначення під забудову.
Свій гараж 24 кв.м. входить в ціну.
Заїзд з боку Гатного до Метро Теремки 10 хв на авто. Також заїзд з боку Крюківщини, зручна розвязка, 25 хв. на Севастопольську площу. ТРЦ Республіка 10 хв.
Встановлена система опалення з антіфризом: 1 поверх з теплою підлогою, 2 поверх радіатори біметалеві. встановлений котел, санвузол, кухня. Зроблено розведення електрики (мідь), розведення води по точкам. Зроблено 2 кімнати (підлога, стіни під фініш)
Стіни – газоблок БЦК, моноліт – бетон від Ковальської, вікна – Salamander. Експлуатований дах.
Всі комунікації – електрика 10кВт, каналізація – на кожну частину будинку окремий септик 9 м3 (з переливом), вода в будинку (своя свердловина), інтернет.



















