Продається будинок Київ, Осокорки, 4-а вул. Приозерна, 2 (№ 22-426-030)
Ціна: 140 000 $

Характеристики
Ціна: | 140 000 $ |
---|---|
№ об'єкта: | 22-426-030 |
Тип: | будинок |
Поверхів: | 2 |
Спалень: | 6 |
Площа будинку: | 152 м2 |
Ділянка: | 4 сот |
Адреса: Київ, Дарницький, Осокорки, Приозерна вул., 2
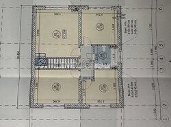
Продається двоповерховий будинок в дуже класному місці для життя та відпочинку, район Білої Дачі, загальної площі 152 м2, утеплений ватою фасад, дах з металочерепиці, м/п вікна, на першому поверсі праворуч від входу кімната, ліворуч котельна, далі ліворуч сан.вузол, далі кухня-студія з виходом на терасу та задній двір.
На другому поверсі три кімнати та кабінет, або гардероба, сан/вузол.
На ділянки два септика з переливом, Скважина з насосом, все заведено в будинок.
Будинок розташований на провулку Лісостеповий біля приватного садочку Talentville, магазину, від метро Славутич 4, 5 км, земельні ділянка приватизована, будинок введений в експлуатацію, все підготовлено до продажу. В будинку 15 кВт електропостачання.
Будинків два поруч побудованих, кутова ділянка, а друга поряд, проєкти будинків однакові - дзеркальні, кутова ділянка більша 4,2 сотки землі, друга менша - 3,6.
Вартість кутового будинку 145000 у.о
Вартість будинку поруч 135000 у.о
Торг можливий!