Продається будинок Київська, Фастівський, Крушинка, вул. Щаслива, 45 (№ 22-419-960)
Ціна: 190 000 $

Характеристики
Ціна: | 190 000 $ |
---|---|
№ об'єкта: | 22-419-960 |
Тип: | будинок |
Поверхів: | 2 |
Спалень: | 3 |
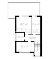
Площа будинку: | 134.7 м2 |
Ділянка: | 6.5 сот |
Адреса: Київська, Фастівський, Крушинка, вул. Щаслива, 45
продається будинок з цегли в тихому і затишному місці, 15 хвилин на авто по Одеській трасі до метро Теремки, будинок під чистове оздоблення, готовий дизайн проект, індивідуальне газове опалення, теплі підлоги на 2х поверхах, септик, свердловина 40м, обслуговування території-територія закрита -охорона, вже куплені міжкімнатні двері, продумане планування ідеальне рішення для вашої родини.