Продається сучасний таунхаус 2 поверхи 100 м² Бортничі (№ 22-406-053)
Ціна: 65 000 $

Характеристики
Ціна: | 65 000 $ |
---|---|
№ об'єкта: | 22-406-053 |
Тип: | таунхаус |
Поверхів: | 2 |
Спалень: | 2 |
Площа будинку: | 100 м2 |
Ділянка: | 1 сот |
Адреса: Київ, Дарницький, Бортничі, Лісова вул., м. Бориспільська
Пропонується комфортний таунхаус з продуманим плануванням та приватною територією.
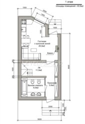
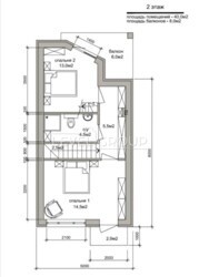
Площа: 100 м² (50 м² на кожному поверсі).
Кімнатність: 2 кімнати, 2 санвузли, кухня-вітальня
Додатково: 2 балкони.
Приватна територія:
•Паркомісце перед будинком – 25 м².
•Зона барбекю за будинком – 25 м².
Будинок ідеально підходить для сімейного життя, поєднуючи комфорт сучасного житла із затишком власної прибудинкової території.
Телефонуйте, щоб дізнатися більше та домовитися про перегляд!