Продається танхаус 165 м2, Подільський район-3 сотки, 170.000$ (№ 22-393-938)
Ціна: 179 000 $

Характеристики
Ціна: | 179 000 $ |
---|---|
№ об'єкта: | 22-393-938 |
Тип: | таунхаус |
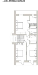
Поверхів: | 2 |
Спалень: | 5 |
Площа будинку: | 165 м2 |
Ділянка: | 3 сот |
Додатково: | гараж |
Адреса: Київ, Подільський
Прекрасный таунхаус с двумя этажами на продажу в городе. Общая площадь дома составляет 165 квадратных метров, а участка - 3 сотки. Дом был построен после 2015 года, поэтому вы можете быть уверены в его современности и соответствии всем современным стандартам.
Стены дома выполнены из кирпича, что обеспечивает надежность и долговечность конструкции. Внешнее утепление стен выполнено минеральной ватой, что обеспечивает хорошую теплоизоляцию и экономию энергии. Кровля выполнена из битумной черепицы, что делает ее надежной и долговечной.
Дом оснащен тепловым насосом для отопления, что обеспечивает комфорт и экономию на отоплении. После строителей выполнен качественный ремонт, что позволит вам сразу заселяться без необходимости дополнительных вложений в обновление интерьера.
В доме 5 комнат, что делает его идеальным для семьи. Комфортные условия создают сад, огород, балкон, автоматические ворота и терраса. Есть скважина для коммуникаций.
Рядом с домом находится развитая инфраструктура: детский сад, остановка транспорта, магазины, почта, больница, супермаркет, школа, метро, аптеки, кинотеатр, рестораны, рынок, банки и многое другое. До центра города всего 15 минут на автомобиле.
Дом с проектом Бомбоубежища, введенный в эксплуатацию, со всеми готовыми документами. Керамический блок, утеплитель базальтовая вата 100мм, качественные окна, все здание проармировано по ГОСТу и проекту.